

| 特性 | 1.2 | 型号 | PT E 20 | |
|---|---|---|---|---|
| 1.3 | 动力 | 电动 | ||
| 1.4 | 操作方式 | 步行式 | ||
| 1.5 | 额定载荷能力 | Q (t) | 2 | |
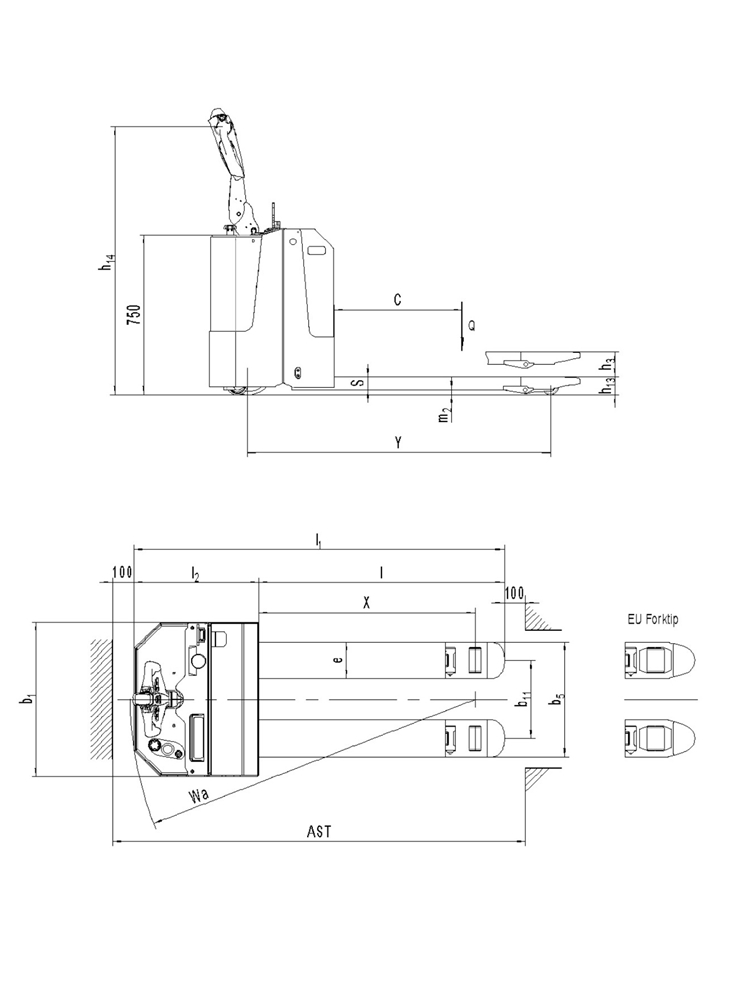
| 1.6 | 载荷中心距 | c (mm) | 600 | |
| 1.8 | 前悬距 | x (mm) | 965 | |
| 1.9 | 轮距 | y (mm) | 1372 | |
| 重量 | 2.1 | 自重 | kg | 470 |
| 2.2 | 满载时桥负荷,驱动轮侧/承重轮侧 | kg | 920/1550 | |
| 2.3 | 空载时桥负荷,驱动轮侧/承重轮侧 | kg | 388/82 | |
| 车轮、底盘 | 3.1 | 轮子 | 聚氨酯轮 | |
| 3.2 | 驱动轮尺寸 | ? x w (mm) | ? 252×88 | |
| 3.3 | 前轮尺寸 | ? x w (mm) | ? 84×85 | |
| 3.4 | 脚轮尺寸 | ? x w (mm) | ?100×40 | |
| 3.5 | 轮子数量(驱动轮数为x)脚轮/前轮 | 1x+2/2;+2/4 | ||
| 3.6 | 轮距(前面)驱动侧 | b10 (mm) | 500 | |
| 3.7 | 轮距(后面)承重侧 | b11 (mm) | 367/512 | |
| 基本尺寸 | 4.4 | 提升高度 | h3 (mm) | 120 |
| 4.9 | 作业时手柄高度,最小/最大 | h14 (mm) | 900/1260 | |
| 4.15 | 货叉最低高度 | h13 (mm) | 85 | |
| 4.19 | 总体长度 | l1 (mm) | 1736 | |
| 4.2 | 车体长度 | l2 (mm) | 587 | |
| 4.21 | 车体宽度 | b1 (mm) | 729 | |
| 4.22 | 货叉尺寸 | s/e/l (mm) | 60/173/1150 | |
| 4.25 | 货叉外宽 | b5 (mm) | 540/685 | |
| 4.32 | 最小离地间隙 | m2 (mm) | 25 | |
| 4.34 | 直角堆垛通道宽度 800X1200., 沿货叉放置 | Ast (mm) | 2234 | |
| 4.35 | 转弯半径 | Wa (mm) | 1570 | |
| 性能 | 5.1 | 行驶速度 满载/空载 | km/h | 6.0/6.0 |
| 5.2 | 提升速度 满载/空载 | m/s | 0.020/0.040 | |
| 5.3 | 下降速度 满载/空载 | m/s | 0.030/0.030 | |
| 5.8 | 爬坡能力 满载/空载 | % | 6/10 | |
| 5.1 | 行车制动 | 电磁制动 | ||
| 电机 | 6.1 | 驱动电机功率 | kW | 1.3 |
| 6.2 | 提升电机功率 | kW | 0.8 | |
| 6.3 | 电池根据DIN 43531/ 35/ 36 A, B, C,非标 | 3VBS,非标 | ||
| 6.4 | 电池电压/容量K5 | V/ Ah | 24V/165Ah | |
| 6.5 | 电池重量(+/-5%) | kg | 160 | |
| 6.6 | 根据VDI循环的能耗 | kWh/h | - | |
| 其他 | 8.1 | 驱动控制方式 | AC速度控制 | |
| 8.4 | 驾驶员耳边噪音水平 | dB(A) | 69 |