


1. 柯蒂斯交流控制器, CANBUS系统:
交流电机能提供连续平稳的再生控制,先进的高功率单元更加高效平稳。在微处理器的帮助下,可以降低电机和电池的损耗,并且所有的功能都可以人性化设置。
2.交流电机驱动轮结合了多种功能,比如传动,制动。
电机和驱动轮轴是立式排布的。这是二级减速, 主齿轮是格里森式螺旋齿轮级齿轮减速,传动稳定,噪声小,承载能力强。
回转轴承组装在减速器上,螺丝孔在轴承环上,容易拆卸,实现了人力或动力转向功能。此外减震器和减震弹簧使驱动力更强,增强了地面的摩擦力。
3.德国REMA-CANBUS 诺力专用手柄
采用最新的CANOPEN,PCB V1.3.,外形美观、光滑, 操作方便,触摸舒适。
全集成电路使工作稳定可靠,并且具备较高的兼容性。
4.意大利进口液压动力单元,动力强劲,运行平稳,噪音低。同时具有防爆安全保护装置,缓慢减速,保证车辆操作都在安全可控的范围内。
5.柯蒂斯EPS(电动助力转向系统)作为标准配置
电动助力转向使操作员更加方便平稳的进行转向,操作更容易、更安全。
6. 新的防护臂和脚踏板,更方便,高防护强度,不易变形, 防撞性能高,因此很大程度上提高了安全等级。脚踏板比旧版本长,有更好的减震功能。标准配置中包括感应保护系统。护臂抬起后,货叉只能提升到一定的高度, 因此安全性能更高。
7.根据CE标准的改进,特别是车辆的安全性和耐用性.
新的控制系统、钥匙、急停开关和仪表整齐的排布在一起, 操作更加方便快捷。
新的德国REMA手柄,标准配有急停按钮,快速切断控制电路,更加安全可靠。
电器箱盖由高级冷轧钢板压制而成,强度和耐久性更高,同时具有的散热孔能有效保护电器元件。
电池外罩采用工程塑料制作,经久耐用并具有存储功能,能够更有效的保护电池。
8.为了更好地满足客户需求, 我们可以选配侧移器,保证车辆能够在特殊环境中使用。



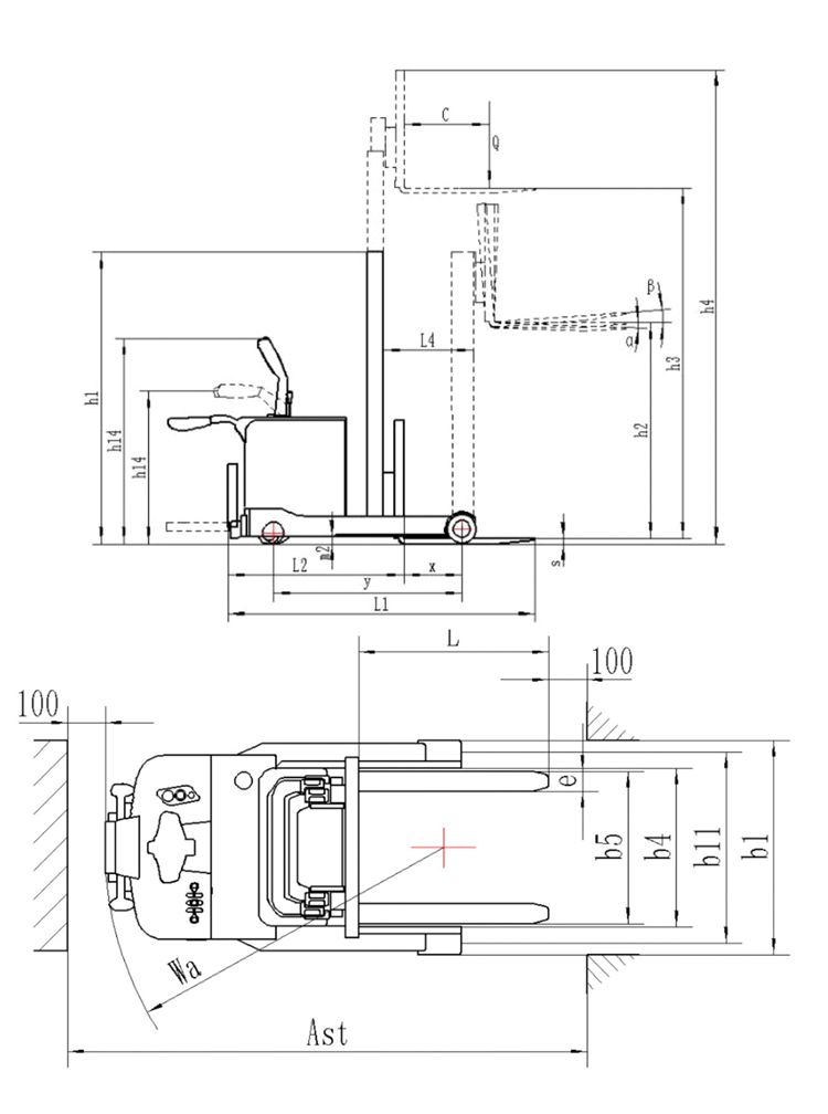
| 工业车辆参数表(VDI2198) | ||||||||
|---|---|---|---|---|---|---|---|---|
| 特性 | 1.2 | 型号 | PS13RM16 | PS13RM18 | PS13RM30 | PS13RM36 | PS13RM45 | |
| 1.3 | 动力 | 电动 | ||||||
| 1.4 | 驾驶方式 | 步行式 | ||||||
| 1.5 | 额定承载能力 | Q(kg) | 1300 | |||||
| 1.6 | 载荷中心距 | C(mm) | 600 | |||||
| 1.8 | 前悬距 | X(mm) | 414 | |||||
| 1.9 | 轴距 | Y(mm) | 1368 | |||||
| 重量 | 2.1 | 重量 | kg | 1850 | 1900 | 2000 | 2100 | 2200 |
| 2.2 |
满载时桥负荷 驱动侧/承重侧 |
kg | 1500/1650 | 1530/1670 | 1570/1730 | 1600/1800 | 1660/1840 | |
| 2.3 |
空载时桥负荷 驱动侧/承重侧 |
kg | 1370/480 | 1410/490 | 1485/515 | 1550/550 | 1620/580 | |
| 车子车体 | 3.1 | 轮子 | 聚氨酯轮 | |||||
| 3.2 | 轮子尺寸 驱动侧 | mm | Φ250x82 | |||||
| 3.3 | 轮子尺寸 承重侧 | mm | Φ210x85 | |||||
| 3.4 | 转向轮尺寸 | mm | Φ124x60 | |||||
| 3.5 |
轮子数量(x=驱动轮) 驱动侧/承重侧 |
1x+2/2 | ||||||
| 3.6 | 轮距(前面) 驱动侧 | b10(mm) | 680 | |||||
| 3.7 | 轮距(后面) 承重侧 | b11(mm) mm | 993 | |||||
| 基本尺寸 | 4.1 | 货叉倾角前/后 | α/β(°) | 2/4 | ||||
| 4.2 | 门架缩回时高度 | h1(mm) | 2196 | 2396 | 2096 | 1796 | 2096 | |
| 4.3 | 自由提升高度 | h2(mm) | 1600 | 1800 | - | 1200 | 1500 | |
| 4.4 | 提升高度 | h3(mm) | 1600 | 1800 | 3000 | 3600 | 4500 | |
| 4.5 | 作业时门架最大高度 | h4(mm) | 2485 | 2685 | 3885 | 4485 | 5385 | |
| 4.9 |
作业时手柄高度 最大/最小 |
h14(mm) | 1034/1415 | |||||
| 4.15 | 门架缩回时货叉高度 | h13(mm) | 50 | |||||
| 4.19 | 总体长度 | l1(mm) | 2130 | |||||
| 4.20 | 车体长度 | l2(mm) | 1380 | |||||
| 4.21 | 车体宽度 | b1(mm) | 1090 | |||||
| 4.22 | 货叉尺寸 |
s/e/l (mm) |
35/100/950(1150) | |||||
| 4.25 | 货叉外宽 | b5(mm) | 220/760 | |||||
| 4.26 | 支撑臂和载重面间距离 | b4(mm) | 790 | |||||
| 4.28 | 前移距离 | l4(mm) | 540 | |||||
| 4.32 | 最小离地间隙 | m2(mm) | 39 | |||||
| 4.33 |
通道宽度1000X1200 跨货叉放置 |
Ast(mm) | 2640 | |||||
| 4.34 |
通道宽度,800X1200 沿货叉放置 |
Ast(mm) | 2680 | |||||
| 4.35 | 转弯半径 | Wa(mm) | 1594 | |||||
| 性能 | 5.1 | 行驶速度 满载/空载 | km / h | 5.0/5.5 | ||||
| 5.2 | 起升速度 满载/空载 | m/s | 0.85/1.22 | 1.10/1.65 | ||||
| 5.3 | 下降速度 满载/空载 | m/s | 1.25/0.8 | 1.0/0.95 | ||||
| 5.8 | 最大爬坡能力 | % | 5/8 | |||||
| 5.10 | 停车制动 | 电磁制动 | ||||||
| 电机 | 6.1 | 驱动电机功率 | kw | 1.6 | ||||
| 6.2 | 提升电机功率 | kw | 2.2 | 3.0 | ||||
| 6.3 | 蓄电池DIN | 3PzS | 5PzS | |||||
| 6.4 | 蓄电池电压,容量 | V/Ah | 24 / 270 | 24 / 400 | ||||
| 其它 | 8.1 | 驱动控制方式 | 场效应管控制 | |||||
| 8.4 |
驾驶员耳边噪音水平 根据EN12053 |
dB(A) | 67 | |||||