


通过交流驱动技术,PS-系列堆高车保证了双门架和三门架堆高车在额定载荷达1500kg / 2000kg的高频度堆垛操作中的高性能。若车辆在更大的仓库中使用且需更长距离行驶时,则可选配可折叠式的踏板。
主要特点
· CAN手柄上的操作元件均易于触碰和控制。
· 交流驱动系统提供了高性能,确保低的维修成本,节能高效,操作更持久。
· 钥匙开关,急停开关和蓄电池电量表。
· 蓄电池可保证高载荷时长时间操作。
· 坚固的蓄电池外罩包含存放实用工具,包装用保鲜膜的存储区域。
· 电动转向功能使操作更加方便。通过电动转向功能使车辆在狭窄空间内的操作更加容易。
· 选配带有侧面防护臂的悬浮可折叠式踏板。
· 带有侧面防护臂的可折叠式踏板符合人体工学设计,操作更加快捷安全。
· 可折叠式踏板在狭窄空间内操作具有更大灵活性。
规格配置
| 特性 | 1.2 | 型号 | PS 15501) | |
|---|---|---|---|---|
| 1.3 | 动力 | 电动 | ||
| 1.4 | 操作方式 | 步行 | ||
| 1.5 | 额定承载能力 | Q(kg) | 1500 | |
| 1.6 | 载荷中心距 | C(mm) | 600 | |
| 1.8 | 前悬距 | x(mm) | 765 | |
| 1.9 | 轴距 | y(mm) | 1519 | |
| 重量 | 2.1 | 自重(包括蓄电池) | Kg | 1596 |
| 2.2 | 满载时桥负荷 驱动轮侧/承重轮侧 | Kg | 1345/1663 | |
| 2.3 | 空载时桥负荷 驱动轮侧/承重轮侧 | Kg | 955/553 | |
| 轮子、底盘 | 3.1 | 轮子,橡胶实心轮,聚胺酯轮 | 聚氨酯轮 | |
| 3.2 | 轮子尺寸,驱动侧 | ?×W (mm) | Ф230×75 | |
| 3.3 | 轮子尺寸,承重侧 | ?×W (mm) | Ф80×70 | |
| 3.4 | 稳定轮尺寸 | ?×W (mm) | Ф124×60 | |
| 3.5 | 轮子数量(驱动侧/承重侧,x=驱动轮) | 1x+2/4 | ||
| 3.6 | 轮距,驱动侧 | b10(mm) | 750 | |
| 3.7 | 轮距,承重侧 | b11(mm) | 395 | |
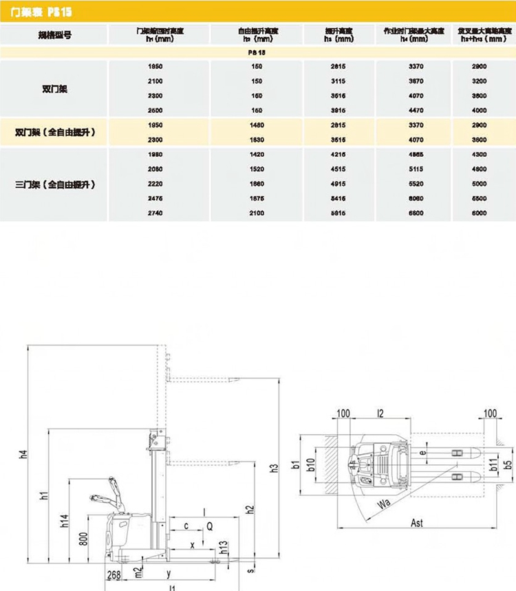
| 基本尺寸 | 4.2 | 门架缩回时高度 | h1(mm) | 2220 |
| 4.3 | 自由提升高度 | h2(mm) | 1660 | |
| 4.4 | 提升高度 | h3(mm) | 4915 | |
| 4.5 | 作业时门架最大高度 | h4(mm) | 5520 | |
| 4.9 | 作业时手柄高度,最小/最大 | h14(mm) | 945/1370 | |
| 4.15 | 门架缩回时货叉高度 | h13(mm) | 85 | |
| 4.19 | 总体长度 | l1(mm) | 2180 | |
| 4.2 | 车体长度 | l2(mm) | 1030 | |
| 4.21 | 车体宽度 | b1(mm) | 1000 | |
| 4.22 | 货叉尺寸 | s/e/l(mm) | 60/180/1150 | |
| 4.25 | 货叉外宽 | b5(mm) | 575 | |
| 4.32 | 最小离地间隙 | m2(mm) | 25 | |
| 4.33 | 通道宽度1000×1200跨货叉放置 | Ast(mm) | 2645 | |
| 4.34 | 通道宽度 800×1200 沿货叉放置 | Ast(mm) | 2592 | |
| 4.35 | 转弯半径 | Wa(mm) | 1806 | |
| 性能 | 5.1 | 行驶速度 满载/空载 | km/h | 5.9/6.0 |
| 5.2 | 起升速度 满载/空载 | m/s | 0.141/0.212 | |
| 5.3 | 下降速度 满载/空载 | m/s | 0.227/0.178 | |
| 5.8 | 最大爬坡能力 满载/空载 | % | 6/12 | |
| 5.1 | 行车制动 | 电磁制动 | ||
| 电机 | 6.1 | 驱动电机功率S2 60 | kw | 1.5 |
| 6.2 | 提升电机功率S3 15% | kw | 3 | |
| 6.3 | 蓄电池根据 DIN43531/35/36 A,B,C标准 | B,3PzS | ||
| 6.4 | 蓄电池电压/容量 | V/Ah | 24/350 | |
| 6.5 | 蓄电池重量 (+/-5%) | kg | 288 | |
| 6.6 | 按VDI循环能耗 | kWh/h | 2.06 | |
| 其它 | 8.1 | 驱动控制方式 | 场效应管控制 | |
| 8.4 | 驾驶员耳边噪音水平 根据EN12053 | dB(A) | <70 |


