






| 特性 | 1.2 | 型号 | PS 10M | PS 10SL | |||
|---|---|---|---|---|---|---|---|
| 1.3 | 动力 (电动,柴油,汽油,液化石油气,电气) | 电动 | 电动 | ||||
| 1.4 | 操作方式 | 步行式 | 步行式 | ||||
| 1.5 | 额定承载能力 | Q(t) | 1 | 1 | |||
| 1.6 | 载荷中心距 | c(mm) | 600 | 600 | |||
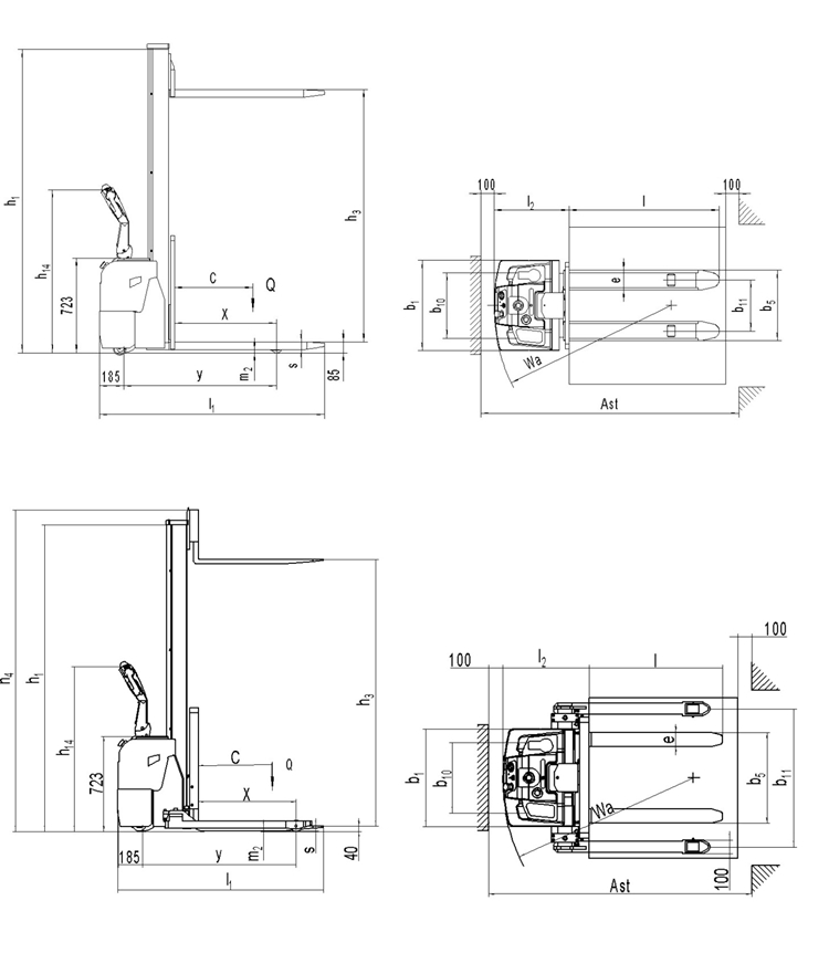
| 1.8 | 前悬距 | x(mm) | 782 | 742 | |||
| 1.9 | 轴距 | Y(mm) | 1170 | 1170 | |||
| 重量 | 2.1 | 自重 | kg | 536 | 566 | 676 | 706 |
| 2.2 | 满载时桥负荷 驱动侧/承重侧 | kg | 850/680 | 850/710 | 905/765 | 920/780 | |
| 2.3 | 空载时桥负荷 驱动侧/承重侧 | kg | 320/210 | 320/240 | 385/285 | 400/300 | |
| 轮子、底盘 | 3.1 | 轮子 | 聚氨酯轮 | 聚氨酯轮 | |||
| 3.2 | 轮子尺寸 驱动侧 | ? × w (mm) | ? 252×89 | ? 252×89 | |||
| 3.3 | 轮子尺寸 承重侧 | ? × w (mm) | ? 84×70 | ? 84×70 | |||
| 3.4 | 稳定轮尺寸 | ? × w (mm) | ? 100×40 | ? 100×40 | |||
| 3.5 | 轮子数量(x=驱动轮) 驱动侧/承重侧 | 1x+2/2 | 1x+2/2 | ||||
| 3.6 | 轮距规程 驱动侧 | b10mm | 500 | 500 | |||
| 3.7 | 轮距 承重侧 | b11 (mm) | 390 | 1000-1370 | |||
| 基本尺寸 | 4.2 | 门架缩回时高度 | h1 (mm) | 1970 | 2370 | 1970 | 2370 |
| 4.3 | 自由提升高度 | h2 (mm) | 1530 | 1930 | 1530 | 1930 | |
| 4.4 | 提升高度 | h3 (mm) | 1530 | 1930 | 1530 | 1930 | |
| 4.5 | 作业时门架最大高度 | h4 (mm) | 1970 | 2370 | 2090 | 2490 | |
| 4.9 | 作业时手柄高度, 最小/最大 | h14mm | 934/1205 | 934/1205 | |||
| 4.15 | 门架缩回时货叉高度 | h13mm | 85 | 40 | |||
| 4.19 | 总体长度 | l1mm | 1725 | 1765 | |||
| 4.2 | 车体长度 | l2mm | 573 | 613 | |||
| 4.21 | 车体宽度 | b1mm | 692 | 692 | |||
| 4.22 | 货叉尺寸 | s/e/l (mm) | 60/150/1150 | 60/100/1150 | |||
| 4.25 | 货叉外宽 | b5 (mm) | 540 | 252-800 | |||
| 4.32 | 最小离地间隙 | m2mm | 25 | 25 | |||
| 4.33 | 通道宽度1000x1200跨货叉放置 | Ast (mm) | 2200 | 2297 | |||
| 4.34 | 通道宽度800x1200沿货叉放置 | Ast (mm) | 2140 | 2297 | |||
| 4.35 | 转弯半径 | Wa (mm) | 1360 | 1360 | |||
| 性能 | 5.1 | 行驶速度 满载/空载 | km/h | 5.5/5.5 | 5.5/5.5 | ||
| 5.2 | 起升速度 满载/空载 | m/s | 0.076/0.197 | 0.076/0.197 | |||
| 5.3 | 下降速度 满载/空载 | m/s | 0.106/0.110 | 0.106/0.110 | |||
| 5.8 | 最大爬坡能力 满载/空载 | % | 5/10 | 5/10 | |||
| 5.1 | 行车制动 | 电磁制动 | 电磁制动 | ||||
| 电机 | 6.1 | 电机额定功率 S2 60分钟 | kW | 0.9(AC) | 0.9(AC) | ||
| 6.2 | 提升电机额定功率 S3 4.5% | kW | 1.2 | 1.2 | |||
| 6.3 | 电池根据DIN 43531/35/36 A, B, C, no | no | no | ||||
| 6.4 | 电池电压,额定容量 K5 | V/Ah | 2x12 / 106 | 2x12 / 106 | |||
| 6.5 | 电池重量(+/-5%) | kg | 68 | 68 | |||
| 6.6 | 根据VDI循环的能耗 | Kwh/h | 1.05 | 1.05 | |||
| 其他 | 8.1 | 驱动控制方式 | 交流速度控制 | 交流速度控制 | |||
| 8.4 | 驾驶员耳边噪音水平 根据EN 12053 | dB(A) | <70 | <70 | |||
